5642 S Prairie AvenueChicago, IL 60637




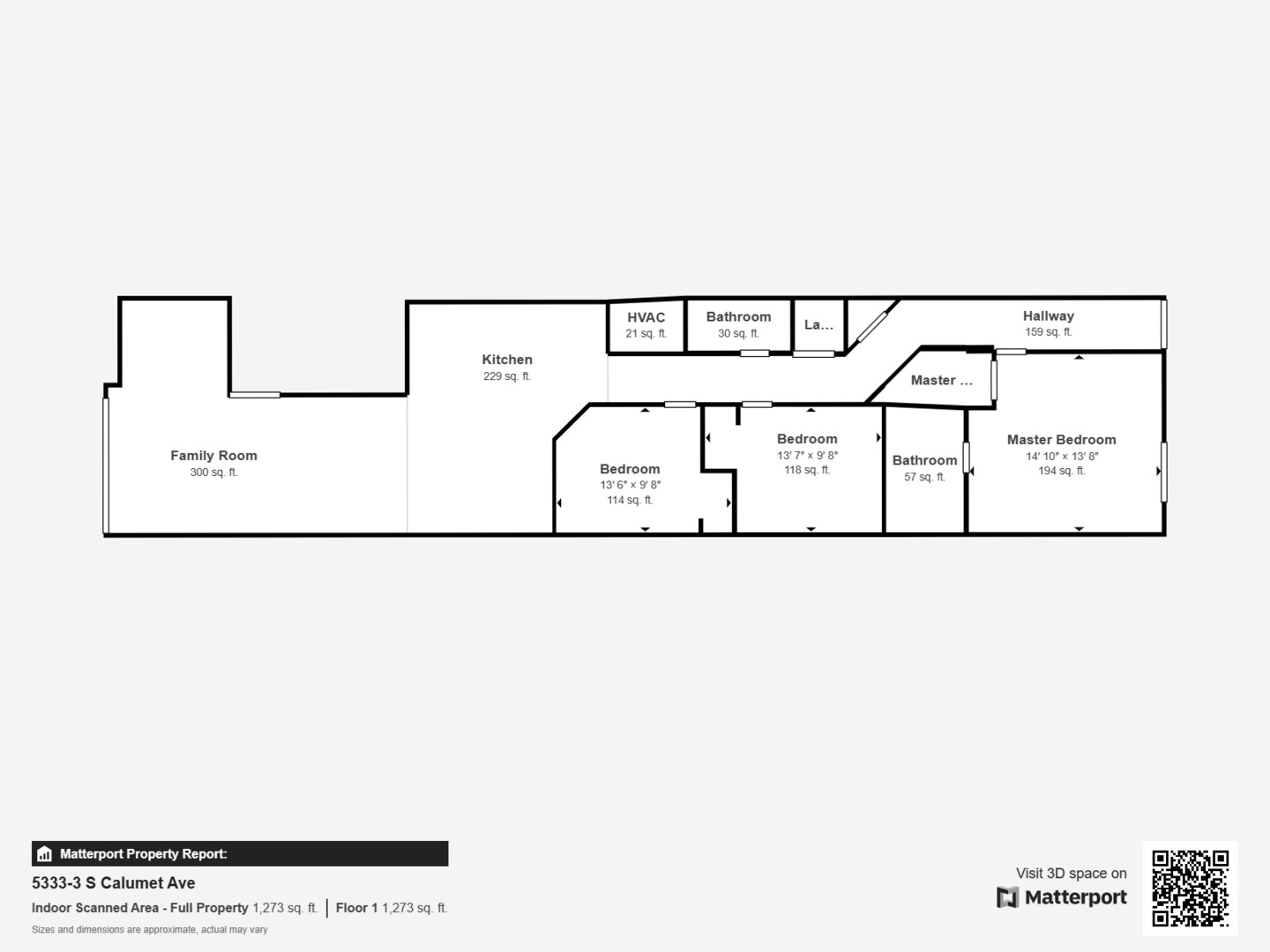
4-unit, 2007 construction, perfect OWNER-OCCUPANT investment opportunity in appreciating east Washington Park! Units 1 and 2 are currently vacant for owner-occupancy. All four units are 3-bed / 2-bath and have in-unit laundry hook-ups, hardwood and tile throughout, modern appliances, gas-forced-heat / central air, in-unit hot water tanks, and individual utilities. The units are larger than than most of the new construction in the area, ranging in size between 1,200 and 1,400 SF. The property has had extensive improvements in the last year to the interior and exterior. Other notable features: steel porches with individual outdoor spaces, sump pump and grinder pump, breaker panels in-unit, five exterior parking spaces with automatic gate, common coin laundry, new carpet and paint in common hallway, granite countertops with islands, separate living and dining areas, and updated lighting and bathroom fixtures. All kitchens have refrigerators, dishwashers, gas stoves, built-in microwaves, and condo-quality cabinetry. This is a fantastic opportunity for an owner-occupant to occupy one unit and benefit from the income from the other three units.
| 4 weeks ago | Listing updated with changes from the MLS® | |
| 4 weeks ago | Status changed to Active | |
| a month ago | Listing first seen on site |
Based on information submitted to the MLS GRID as of 2026-05-28 10:09 AM UTC. All data is obtained from various sources and may not have been verified by broker or MLS GRID. Supplied Open House Information is subject to change without notice. All information should be independently reviewed and verified for accuracy. Properties may or may not be listed by the office/agent presenting the information.
Last checked: 2026-05-28 10:09 AM UTC
MRED DMCA Copyright Information Copyright © 2026 Midwest Real Estate Data LLC. All rights reserved.

Did you know? You can invite friends and family to your search. They can join your search, rate and discuss listings with you.