3806 N Nordica AvenueChicago, IL 60634




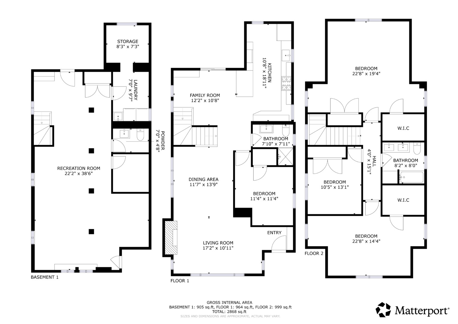
Beautiful, spacious, and meticulously maintained home in the highly desirable Dunning neighborhood of Chicago. This large 4-bedroom, 2 Full and half-bath residence offers a thoughtful, open floor plan with hardwood floors throughout and quality craftsmanship at every turn. The main level features a bright living room with an electric fireplace, a versatile bedroom or home office, and a full bathroom. The elegant kitchen is designed for both everyday living and entertaining, showcasing white shaker cabinetry, stainless steel appliances, updated backsplash, marble window sill counters, and a generous dining area. A custom mudroom back entryway adds everyday convenience and organization. The second floor boasts a stunning primary suite with a walk-in closet featuring custom built-ins, along with two additional bedrooms and a spacious full bath. The fully finished basement provides a large family room, powder room, and ample storage space. Major infrastructure upgrades include two high-efficiency zoned heating and cooling systems, updated electric, plumbing, insulation, newer water and sewer lines, drain tile system, dual sump pumps with battery backup, Leaf filter gutter system, and recently completed city lead pipe remediation from the street to the home. Outdoor living truly shines with a private fenced backyard featuring new concrete, stone pavers, professional landscaping, a large deck with wooden privacy wall, vinyl fencing with lattice detail, and a newer garage - perfect for relaxing or entertaining. Excellent location just minutes from Harlem Irving Plaza, Shabbona Park, Metra, the Blue Line, expressways, Schools and an array of shops, dining, and entertainment. This move-in-ready home combines modern updates, space, and an unbeatable location - a must-see! Click 3D Tour and enjoy!
| 3 weeks ago | Listing updated with changes from the MLS® | |
| 3 weeks ago | Status changed to Active Under Contract | |
| 4 weeks ago | Listing first seen on site |
Based on information submitted to the MLS GRID as of 2026-02-27 01:17 PM UTC. All data is obtained from various sources and may not have been verified by broker or MLS GRID. Supplied Open House Information is subject to change without notice. All information should be independently reviewed and verified for accuracy. Properties may or may not be listed by the office/agent presenting the information.
Last checked: 2026-02-27 01:17 PM UTC
MRED DMCA Copyright Information Copyright © 2026 Midwest Real Estate Data LLC. All rights reserved.

Did you know? You can invite friends and family to your search. They can join your search, rate and discuss listings with you.