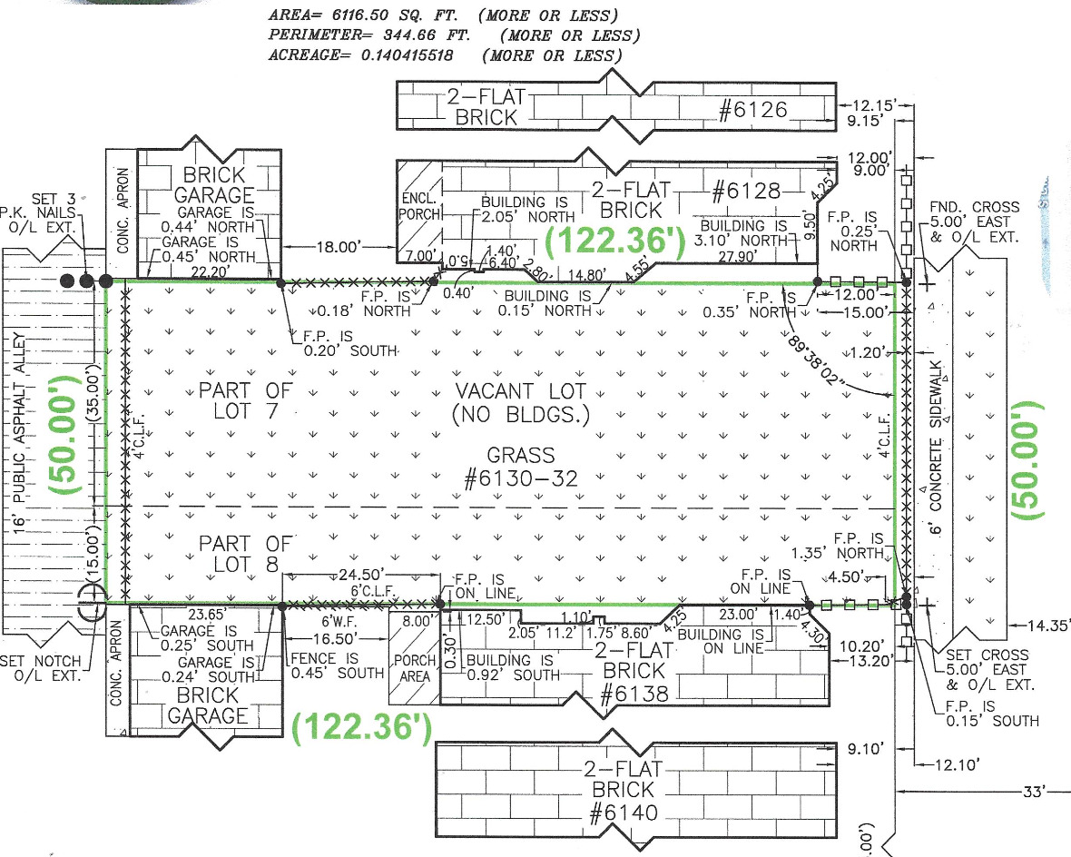
6132 S Langley AvenueChicago, IL 60637



WOODLAWN: RM-5 DOUBLE LOT Rare high-density development land in Red Hot Woodlawn. This double lot with RM-5 Zoning allows for excellent multi-unit density. Unbeatable location-walk to the University of Chicago Hospital, Green Line train, and major neighborhood attractions like Washington Park and The Midway. Directly benefiting from over a billion dollars in neighborhood investment (Obama Presidential Center, UChicago). Shovel-ready zoning for maximum ROI.
| 3 days ago | Listing updated with changes from the MLS® | |
| 4 days ago | Status changed to Active Under Contract | |
| 7 days ago | Listing first seen on site |
Based on information submitted to the MLS GRID as of 2025-11-09 09:26 PM UTC. All data is obtained from various sources and may not have been verified by broker or MLS GRID. Supplied Open House Information is subject to change without notice. All information should be independently reviewed and verified for accuracy. Properties may or may not be listed by the office/agent presenting the information.
Last checked: 2025-11-09 09:26 PM UTC
MRED DMCA Copyright Information Copyright © 2025 Midwest Real Estate Data LLC. All rights reserved.

Did you know? You can invite friends and family to your search. They can join your search, rate and discuss listings with you.