1320 N Homan AvenueChicago, IL 60651




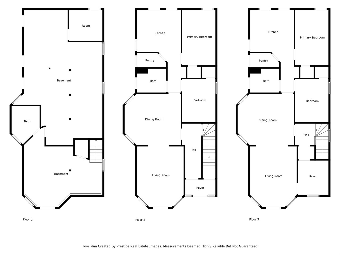
Diamond in the rough. Two flat located in Humboldt Park. Rare opportunity to own and renovate in a very hot market. Property offers two apartments with a full basement, back yard, and detached garage. Don't miss this opportunity. Floor plans attached.
yesterday | Listing updated with changes from the MLS® | |
yesterday | Status changed to Active | |
7 days ago | Listing first seen on site |

Based on information submitted to the MLS GRID as of 2025-10-20 11:58 AM UTC. All data is obtained from various sources and may not have been verified by broker or MLS GRID. Supplied Open House Information is subject to change without notice. All information should be independently reviewed and verified for accuracy. Properties may or may not be listed by the office/agent presenting the information.
Last checked: 2025-10-20 11:58 AM UTC
MRED DMCA Copyright Information Copyright © 2025 Midwest Real Estate Data LLC. All rights reserved.
Did you know? You can invite friends and family to your search. They can join your search, rate and discuss listings with you.